Sie suchen mehr als nur vier Wände und einen Schreibtisch? Sie suchen einen Ort, der Ihre Kreativität beflügelt, Ihre Unternehmenskultur widerspiegelt und sich bewusst vom sterilen Einerlei moderner Business-Parks abhebt?
Dann heißen wir Sie herzlich willkommen in dieser einzigartigen Büroetage in einem gewachsenen, lebendigen Mischgebiet in Mannheim-Käfertal. Hier, in einem ehemaligen Metallbaubetrieb, trifft authentischer Industrie-Charme auf modernes Arbeiten – der perfekte Nährboden für Ihren Erfolg.
Diese besondere Bürofläche befindet sich im 1. Obergeschoss und versprüht auf jedem Quadratmeter den Charme ihrer handwerklichen Vergangenheit. Große Fensterfronten und ein offener, flexibler Grundriss schaffen ein lichtdurchflutetes und inspirierendes Arbeitsumfeld, das seinesgleichen sucht.
Die Fläche atmet Geschichte und bietet gleichzeitig alle Voraussetzungen für konzentriertes und kreatives Schaffen. Ideal für alle, die das Besondere schätzen:
- Kreativagenturen, Architekten, Designer: Finden Sie in der industriellen Ästhetik die perfekte Leinwand für Ihre Projekte.
- Therapeuten, Berater, Coaches: Bieten Sie Ihren Klienten einen ruhigen, diskreten und vertrauensvollen Rückzugsort mit einer außergewöhnlichen Atmosphäre.
- Start-ups und etablierte Unternehmen: Heben Sie sich vom Wettbewerb ab und bieten Sie Ihrem Team ein Arbeitsumfeld, das motiviert und Identität stiftet.
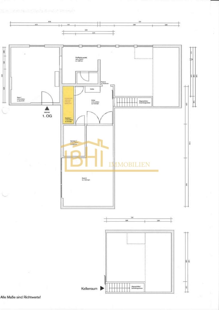
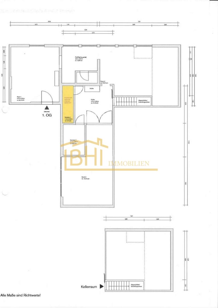
**Raumaufteilung:**
- 3 helle und freundliche Bürozimmer, die eine angenehme Arbeitsatmosphäre schaffen
- Gäste-WC
- Teeküche
- Kellerbereich/ Archiv, der zusätzlichen Stauraum bietet (ca. 20 qm)
Die Büroräume sind derzeit vermietet und können ab dem 01. Oktober 2025 angemietet werden.
Optional zuzüglich gesetzliche Mehrwertsteuer.
Die Büroetage wird provisionsfrei für Mieter angeboten.
Überzeugen Sie sich selbst von diesem attraktiven Angebot und vereinbaren Sie noch heute einen Besichtigungstermin!
Wir freuen uns auf Ihre Anfrage!








